OMC informatieboekje oprichting

AAN ALLE INWONERS VAN RAAMSONK
HET KLOOSTER WORDT ONTMOETINGSCENTRUM
Ons Dorp is vrij klein, maar wo beschikken over een opvallend bloeiend gemeenschaps- en verenigingsleven. Veel verenigingen en instellingen hebben echter last van het ontbreken van geschikte huisvesting. Nieuwe initiatieven komen niet of nauwelijks van de grond, omdat de daarvoor nodige ruimten ontbreken.
In april 1972 kwam het Bejaardentehuis St. Adrianus leeg. Daarmee ontstond meteen de mogelijkheid om het gebrek aan ruimte op te heffen en tegelijk aan ons Dorp een centrum te geven: de ligging van een kerk, een basisschool en een gemeenschapshuis rondom een park vormt een ideale situatie voor een dorpskern.
Als het Adrianusgobouw lange tijd leeg zou blijven staan, zou het gauw in verval raken. Een aantal inwoners van Raansdonk-dorp vormden daarom ruim een jaar geleden een werkgroep, die plannen ging naken tot handhaving, beheer en exploitatie van het gebouw ter voorziening in de behoeften aan geschikte lokaalruimte voor de aktiviteiten van alle plaatselijke verenigingen en stichtingen op maatschappelijk, levensbeschouwelijk, rekreatief en kultureel gebied.
De Raamsdonkse werkgroep heeft heel wat vergaderd, ook net instanties buiten de plaats. In het begin zag het er nogal sonber uit: het Ministerie man C.R.M. stelt geen subsidie voor het stichten van gemeenschapshuizen beschikbaar in dorpskernen met een inwonertal van 5000 of minder (Raamsdonk-dorp heeft ca. 2000 inwoners); het weinicie geld dat voor dit doel aanwezig is, besteedt men aan samenlevingsprojekten in de oude wijken van grote steden.
De Raamsdonkse werkgroep kreeg het advies een bescheiden plan in te dienen bij de provinciale dienst voor de aanvullende werkgelegenheid. Of dit succes zou hebben, en op welke termijn, kon niemand zeggen.
Dit laatste advies is door de werkgroep opgevolgd. Er zijn ook gesprekken gevoerd met het R.K.Schoolbestuur, waardoor besloten werd de nieuwe gymzaal bij het ontmoetingscentrum te plaatsen. Hierdoor kan zowel een bundeling van gemeenschapsvoorzieningen tot stand konen als een beter toezicht en exploitatie.
Op donderdag 20 december j.l. werd bekend dat voor het verbouwingsplan van het Adrianusklooster tot ontmoetingscentrum door het Ministerie van C.R.M. — via de beschikbare gelden voor de aanvullende werkgelegenheid — subsidie is toegekend. Dit houdt in dat de plannen uitgevoerd kunnen worden; met de verbouw moet zelfs voor 1 mei 1974 begonnen worden.
Dit verheugende nieuws is U reeds in "Het Klokje" en via de pers medegedeeld. Om U de opgestelde plannen meer gedetailleerd voor te leggen is deze uitgebreide folder huis-aan-huis te Raamsdonk verspreid. In overleg met de Stuurgroep Raamsdonk zal een bijeenkomst worden georganiseerd waarvoor U allen wordt uitgenodigd, en tijdens welke vergadering over de verwezenlijking van het nieuwe ontmoetingscentrum nader kan worden gesproken. De datum van deze bijeenkomst zal tijdig worden bekend gemaakt.
Hopelijk wordt 1974 voor wat de totstandkoming van het nieuwe ontmoetingscentrum betreft een vruchtbaar jaar.
Raamsdonk, 28 december 1973
- 1 –
EEN DIK RAPPORT
In februari 1973 werd door de Raamsdonkse werkgroep een rapport van 41 pagina's opgesteld. Het kreeg als titel "Begeleidend rapport bij de stichting van een centrale akkommodatie te Raamsdonk". Het rapport bevat alle mogolijke gegevens over ons Dorp, zoals over de geschiedenis en ligging, de bevolkingsopbouw (leeftijden, kerkgenoot-schappen, politieke richtingen), de sociaal-ekonomiesche situatie (bestaansbronnen, arbeidsmarkt, werkadressen), een overzicht van de aanwezige gemeenschapsvoorzieningen en verenigingen op kultureel, rekreatief en maatschappelijk gebied. Verder bevat het rapport natuurlijk allerlei gegevene over het Adrianusgebouw, de voorzieningen die erin moeten komen, een begroting van de stichtingskosten en de financiering ervan en een exploitatie-opzet. De voorbereiding van dit rapport werd mogelijk gemaakt dank zij de resultaten ven een autorally en een loterij onder de bevolking van Raamsdonk, in september 1972. Aan het tot stand komen van deze nota zijn een groot aantal besprekingen met landelijke, provinciale en plaatselijke instanties en personen voorafgegaan die ons de nodige informaties en adviezen verstrekten. Om enige namen te noemen: - College van Burgemeester en Wethouders van de Gemeente Raamsdonk; - Funktionarissen van het Provinciaal Opbouworgaan te Tilburg; - Dhr. T.de Wijs, kontaktambtenaar van het Ministerie van C.R.M.; - Mej. U.Kessels, direktrice van de Prov. Bibliotheekcentrale; - Dhr. J.Loonen, architekt te Dongen. Met een begeleidend subsidie-verzoek is het rapport verzonden naar de volgende instanties: - De Gemeente Raamsdonk; - De D.A.C.W., Dienst Aanvullende Civieltechnische Werken te 's-Hertogenbosch (selekteert projekten voor de aanvullende werkgelegenheid); - De Provincie Noord-Brabant; - Het Ministerie van C,R.M.; - Het Koningin Julianafonds,
VAN WERKGROEP NAAR STICHTING
Toen de plannen duidelijker werden en er subsidies aangevraagd moesten worden, besloot de werkgroep zich om te zetten in een officiële Stichting. Zo'n Stichting heeft statuten, waarvan we er enkele laten volgen:
1. De stichting draagt de naam "Stichting Ontmoetingscentrum Raamsdonk". Welke naam straks het nieuwe gemeenschapshuis, of ontmoetingscentrum, zal krijgen is nog een openvraag. Misschien is het interessant hiervoor een prijsvraag uit te schrijven.
2. Het bestuur is voorlopig als volgt samengesteld:
- dhr. J.Verhoofstad, voorzitter dhr, J.van Drunen, lid
dhr. H.Muskens, sekretaris dhr. R.Hulshoff, lid
dhr. N.van Dongen, penningmeester dhr. G.Knaap, lid
dhr. F.Niessen, lid
Volgens de statuten dient het bestuur zoveel mogelijk representatief te zijn voor de bevolking en het gehele verenigingsleven van Raamsdonk. Is aan deze voorwaarde voldaan? In overleg met de Stuurgroep is over-eengekomen in de bestuurssamenstelling tijdens de oprichtingsfase ggán wijzigingen aan te brengen, In 'n later tijdstip zal vanzelf duidelijk worden welke aanvulling van het bestuur het meest wenselijk is.
3. Het bestuur stelt een Raad van Gebruikers in. Van elke vereniging of stichting die van het ontmoetingscentrum gebruik maakt wordt één persoon als afgevaardigde aangewezen. De raad van gebruikers, die ten minste éénmaal per jaar vergadert, heeft de bevoegdheid aan het bestuur van de stichting aanbevelingen te doen betreffende het beleid.
-2 –
AANWEZIGE GEMEENSCHAPSVOORZIENINGEN IN DE VOORMALIGE R.K.JONGENSSCHOOL EN HET LEOGEBOUW.
Bij de bouw van de Jongensschool In 1926 word tevens 'n lokaal voor de verenigingen bestemd: het Leogobouw. I.v.m. de toename van het aantal leerlingen veranderde de bestemming van dit lokaal na enige jaren in lesruimte. Het Kerkbestuur werkte toen plannen uit voor 'n parochiehuis, te bouwen op het terrein waar nu de nieuwe basisschool staat; o.a. door do oorlog '40- '45 zijn deze plannen niet verwezenlijkt. In 1954 kocht het Kerkbestuur in de Korte Broeketraat 'n fabrieksgebouwtje van de voormalige brouwerij, en richtte het als jeugdhuis in. Als verenigingslokaliteit funktioneerde het slechts matig, wat voornamelijk te wijten was aan de ligging achteraf. Het Kerkbestuur deed het gebouw weer van de hand.
Na het tot stand komen van de nieuwe R.K.Basisschool in 1971 stonden de vier oude klaslokalen leeg. Hier is nu een voorlopige bestemming aan gegeven: in één lokaal is 'n uitleenpost van de Provinciale Bibliotheekcentrale ondergebracht; één lokaal is in gebruik en ingericht door de jongeren van het V.J.V. (Vormingswerk Jonge Volwassenen); twee lokalen zijn aaneengevoegd ten behoeve van de bejaarden. Als tijdelijk onderdak geeft deze huisvesting voor deze aktiviteiten 'n aardige oplossing. De ruimte voor de bibliotheek is echter te klein; de sanitaire voorzieningen zijn onvoldoende. Bovendien is er behoefte aan méér ruimte, voor andere verenigingen. De zolder boven het gymnastieklokaal wordt gebruikt door de jeugdverenigingen; deze is eveneens te klein. De zolder boven de klaslokalen is indertijd door de Gemeente afgekeurd voor gebruik door groepen, vanwege het brandgevaar. Het gymnastieklokaal is overdag in gebruik door de scholen, totaal ca. 25 uur per week. In de avonden en weekends wordt deze zaal gedurende ca. 11 uur per week verhuurd aan de gymnastiekvereniging en aan trimklubs. De zaal is echter véél te klein; de voetwasbakken zijn verouderd, er zijn geen handwasbakken, geen douches, en slechts één toilet-werkkast.
Het Stichtingsbestuur "Ontmoetingscentrum Raamsdonk" neemt betreffende het Leogebouw en het Adrianusgebouw het volgende standpunt in:
Vanuit het oogpunt van gebruiksmogelijkheid en archtektuur heeft de handhaving en aanpassing van het Adrianusgebouw de voorkeur. Het slopen van het Leogebouw kan pas geschieden nadat gebleken is dat in het nieuwe ontmoetingscentrum alle verenigingen, organisaties en instellingen zijn onder te brengen, en nadat de nieuwe gymnastiekzaal is verwezenlijkt.
-3-
IS ER BEHOEFTE AAN MEER EN BETERE RUIMTE ?
In november 1972 is door de werkgroep een enquéte gehouden onder de plaatselijke, gemeentelijke en regionale verenigingen, organisaties en instellingen, waarin deze informaties hebben verstrekt omtrent aantal leden, aktiviteiten, huisvesting, en huisvestingsproblemen. Alle verenigingen en instellingen, totaal ruim vijftig, verleenden hun medewerking. Of deze instellingen straks wel of niet van het nieuwe ontmoetingscentrum gebruik gaan maken was niet aan de orde,.
Het resultaat van deze enquéte is in het begeleidend rapport bij de subsidie-aanvragen verwerkt. Er bleek onder andere het volgende uit:
1. Verschillende stands- en vakorganisaties vulden in: voor het houden van ledenvergaderingen, kursussen, ontspanningsavonden, en kontaktbijeenkomsten met afdelingen uit andere plaatsen is momenteel géén geschikte akkommodatie aanwezig.
2. De "Stichting Bejaardenwerk Raamsdonk i.o." beoogt voorzieningen te treffen ter verbetering van het woon— en leefklimaat van de be jaarden door middel van het open bejaardenwerk,. Dit streven is door haar beschreven en van dokumenten voorzien in het "Rapport ten behoeve van het bejaardenwerk te Raamsdonk" (16 mei 1972). In deze nota wordt gepleit voor 'n "Centrum voor Open Bejaardenwerk", in de ruimste zin: medische verzorging, afhaalapotheek, EHBO-post, wijkverpleegster, badgelegenheid, pedicuredienst, maaltijdverzorging, bejaardengymnastiek, welfare-werk, bibliotheek.
3. De "Stichting Openbare Bibliotheek Raamsdonksveer-Raamsdonkdorp" heeft momenteel in de beide woonkernen van de gemeente een uitleenpost met boeken van de Provinciale Bibliotheek Centrale te Tilburg. Te Raamsdonksveer beschikt men momenteel over 2.600 boeken, in Raamsdonk-dorp over 1.500 boeken. Het aantal uitleningen in 1972 bedroeg voor Raamsdonksveer 18.103, voor Raamsdonk-dorp 11.775. In Raamsdonk-dorp waren in 1972 in totaal 322 lezers.
De "Stichting Openbare Bibliotheek Raamsdonksveer-Raamsdonkdorp" heeft al in 1966 bij het Ministerie van C.R.M. een subsidieverzoek ingediend om te komen tot de oprichting van een officiéle Leeszaal en Bibliotheek te Raamsdonksveer met een dependance te Raamsdonk. De huidige akkommodatie te Raamsdonk-dorp is daarvoor volgens de rijksvoorschriften geheel ongeschikt.
De "Stichting Openbare Bibliotheek Raamsdonksveer-Raamsdonkdorp" heeft bij de Gemeenteraad een subsidieverzoek ingediend voor de vestiging in 1974 van een officiéle Openbare Leeszaal en Bibliotheek te Raamsdonk-dorp, omdat de daarvoor geschikte ruimte te Raamsdonksveer niet beschikbaar is.
4. De Peuterzaal "Ukkepukken", de Muziekschool "Albert Smijers" en de Huishoudschool maken momenteel reeds gebruik van 'n lokaal in de voormalige meisjesschool van het Adrianusgebouw.
5. De vereniging "Katholieke Werkende Jongeren" is ter ziele gegaan, mede doordat het Jeugdhuis in de Korte Broekstraat is verkocht, en verder geen geschikte ruimte aanwezig is.
6. "S.I.K.0."-Gymnastiek is onlangs gestart met 'n judo-afdeling van ruim 60 leden. De huisvesting in de Bejaardensoos is een noodoplossing.
7. De kabouters, gidsen en welpen van "Scouting Raamsdonk" maken thans gezamenlijk gebruik van één ruimte op de zolder van het Leo-gebouw; dit geeft problemen.
8. Hobby- en knutselklubs komen thans in 't geheel niet tot ontplooiing daar men niet over een goede ruimte kan beschikken.
-4-
HET ADRIANUSGEBOUW
In 1906/'07 werd — in opdracht van het R.K.Kerkbestuur, onder voorzittersschap van pastoor A.Frenken — het Adrianusklooster gebouwd, met aangrenzend een meisjesschool. 11 September 1907 deden zes zusters van de Congregatie der Zusters van Liefde uit Schijndel "onder algemene vlaggentooi en met klokkengelui" hun intrede in het gesticht, om zich te wijden aan het onderwijs der kinderen en de verpleging van ouden van dagen.
Het liefdehuis onderging een aanmerkelijke uitbreiding in 1913 door de bouw van een mannen-afdeling, 'n washuis, 'n stal en schuur. In 1927 werd het gehele complex aan de zusters van Schijndel verkocht.
Het ijzeren hek aan de voorkant van het gebouw was het geschenk van de parochie aan de zusters bij het zilveren feest van het gesticht in 1933, Smid Piet van Onzenoort vervaardigde het.
In 1938 voegde men aan het complex nog 'n kleuterschool toe, en werden enkele lokalen in het gebouw ingericht voor naai- en kooklessen. Van die tijd dateert ook de centrale verwarming en de lift-installatie.
Tijdens de Watersnoodramp van 1953 genoten vele getroffenen geruime tijd gastvrijheid in het klooster, Vier jaar later, in 1957, werd op grootse wijze het gouden feest van de Eerwaarde Zusters te Raamsdonk gevierd.
Door de uitvoering van nog enkele kleinere verbouwingen in de laatste jaren was in het tehuis plaats voor veertig bejaarden en ongeveer dertien zusters,.
Bij de in gebruikname van de R.K.Basisschool in 1971 verloor de voormalige meisjesschool haar oorspronkelijke bestemming.
In het voorjaar van 1972 kwam het nieuwe be jaardencentrum "Het Hoge Veer" te Raamsdonksveer gereed, waardoor het Adrianusgesticht overbodig geacht werd, Begin april vertrokken de bejaarden; 16 april 1972 namen de zusters afscheid van Raamsdonk.
De gebouwen zijn thans (met 'n voorlopige koopakte) eigendom van het R.K. Kerkbestuur. In haar laatst gehouden vergadering op 18 december j.l. is de Gemeenteraad van Raamsdonk akkoord gegaan met de aankoop van het gehele complex. In de eerstvolgende raadsvergadering van januari a.s. komt waarschijnlijk het volgende voorstel aan de orde:
a. verkoop van de kleuterschool aan het R.K.Schoolbestuur;
b. sloop van een gedeelte van de linkervleugel van het klooster te behoeve van de bouw van een gymzaal in opdracht van het R.K.Schoolbestuur;
c. verkoop van de voormalige meisjesschool en het Adrianusklooster aan de "Stichting Ontmoetingscentrum Raamsdonk".
-5-
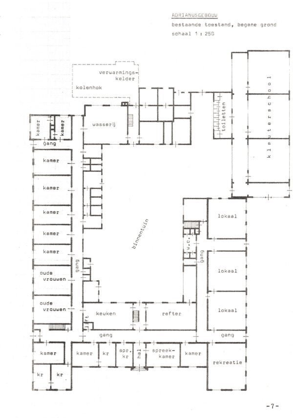
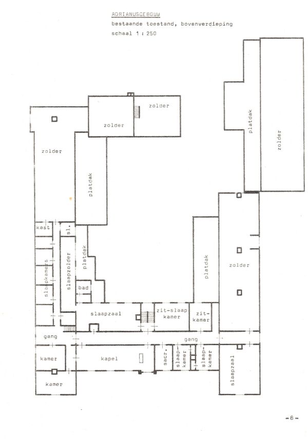
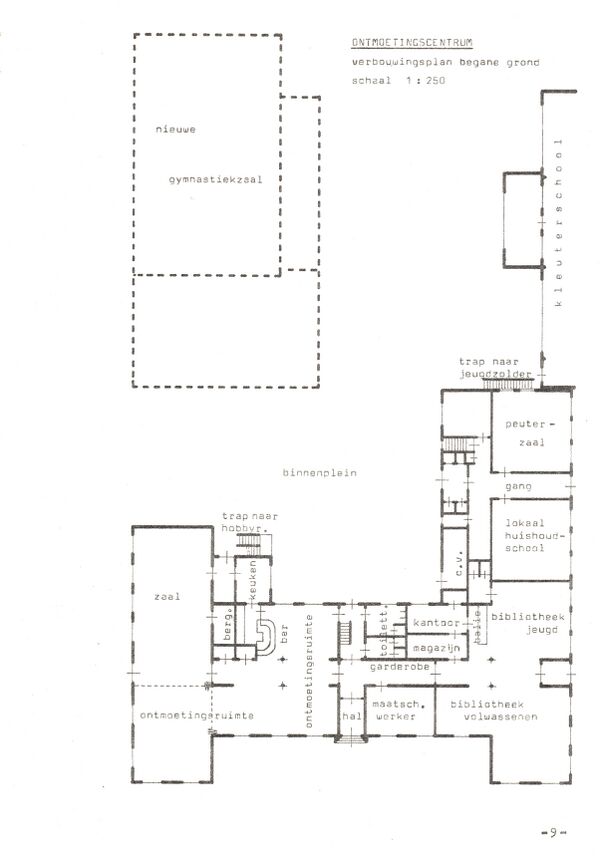
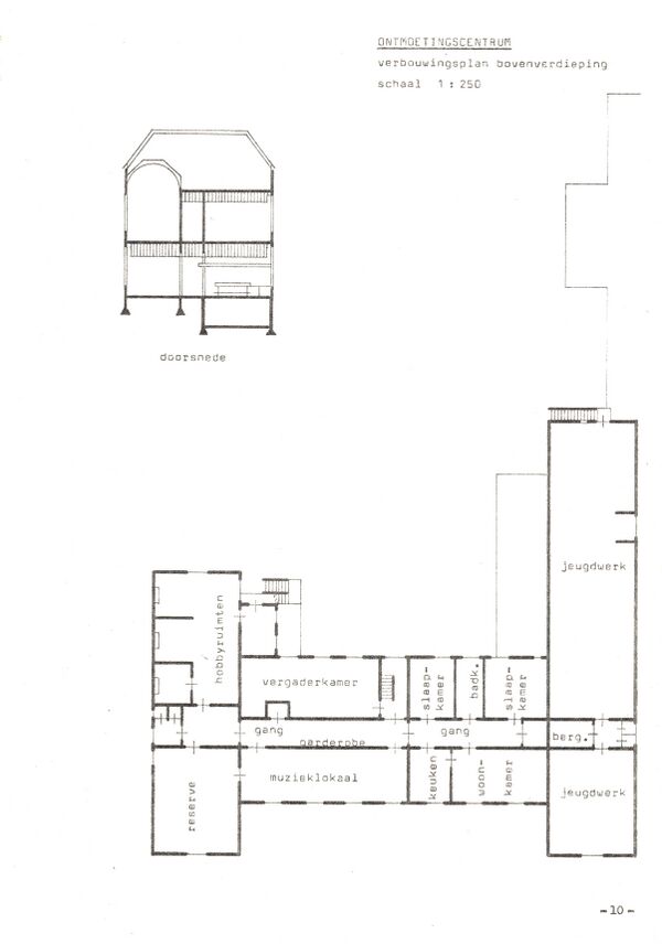
GEPLANDE VOORZIENINGEN IN HET ONTMOETINGSCENTRUM
Zie ook de tekeningen op de pagina's 9 en 10.
a. Vrije ruimten
1. Ontmoetingsruimte 4, Hobbyruimten
2. Grote zaal 5. Binnentuin, patio
3. Vergaderkamer
b. Semi~eigen ruimten
1. Spreek= en werkkamer. Voor maatschappelijk werker(s); buurtwerker; Funktionaris gemeente, polder, waterstaat, vakorganisatie; welfare-werk bejaarden.
2. Muzieklokaal. Voor Muziekschool "Albert Smijers", en voor repetities koren.
c. Eigen ruimten
1. Bibliotheek 3, Lokaal Huishoudschool
2. Peuterzaal 4, Open zolder voor "Scouting R'dk,"
5. Woning beheerder (woonkamer, keuken en twee slaapkamers).
Door het R.K.Schoolbestuur is een nieuwe gymzaal aangevraagd; de bouwplannen zijn uitgewerkt door architekt J.Loonen; alle goedkeuringen zijn verleend, alsook de financiering; het wachten is nog op de urgentieverklaring.
Met het Schoolbestuur, het College van B.&W., en de Inspekteurs van onderwijs en van lichamelijke opvoeding is overeenstemming bereikt over de plaats van de nieuwe gymzaal, nl. achter het Adrianusgebouw. In de avonden en weekends is dan een gekombineerd gebruik met het ontmoetingscentrum mogelijk; het toezicht wordt door de beheerder van het Ontmoetingscentrum uitgeoefend. Door de vloer te bedekken met 'n mat is de gymzaal tevens te gebruiken voor grotere bijeenkomsten.
FINANCIERING VAN DE STICHTING, EXPLOITATIE
De stichtingskosten bestaan uit aankoop gebouwen, overschrijvingskosten, verbouwing en inrichting. De financiering van deze kosten wordt voor het grootste gedeelte gedekt door een subsidie van het Ministerie van C.R.M., die is toegekend in het kader van de aanvullende werkgelegenheid. Waarschijnlijk is het mogelijk nog enkele kleinere subsidies te verkrijgen van de Provincie Noord-Brabant, de Gemeente Raamsdonk, en het Koningin Julianafonds.
Door deze instanties gezamenlijk zullen echter zeker niet de volledige stichtingskosten worden bekostigd. Men verlangt een bijdrage van de bevolking van ca. 10 % van de totale kosten, dit om te voorkomen dat door de overheid een akkommodatie wordt verwezenlijkt zonder bepaalde garanties dat de plaatselijke bevolking deze voorziening ook optimaal zal gaan gebruiken.
De jaarlijkse lasten bestaan o.a. uit onderhoudskosten, verwarming, verlichting, water, verzekeringen, en uit personeelslasten van beheerder en werkster,.
Oe werkgroep heeft in het begeleidend rapport bij de subsidieaanvragen een vrijwel sluitende exploitatie-opzet gemaakt. De belangrijkste inkomsten bestaan uit de opbrengsten uit verhuur van ruimten, waarbij met name voor wat betreft verenigingsaktiviteiten géén hoge huren zijn berekend. Hoe de exploitatie precies zal uitvallen is op dit moment echter moeilijk te voorspellen.
-6-
TEKENINGEN





Digitalisering en Wiki opmaak: Terry van Erp (Er is zoveel mogelijk getracht de oorspronkelijke opmaak te behouden)